
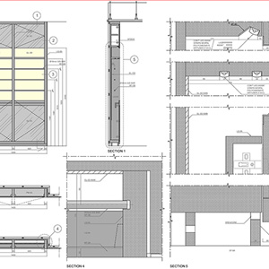
Yurt dışında konsept tasarımı yapılan projelerin, mevcut mağaza rölevelerinin alınarak, aplikasyonlarının yapılması. Shopdrawing lerin hazırlanarak tüm imalat detaylarının hazırlanması, malzeme arge çalışmalarının yapılarak ve uygulama sürecinin kontrolü tarafımızdan yapılmıştır. .